For sale Ground Floor Apartment Costa Del Sol Ojén € 1.250.000,-

Ojén

from € 1.250.000,-

DESCRIPTION

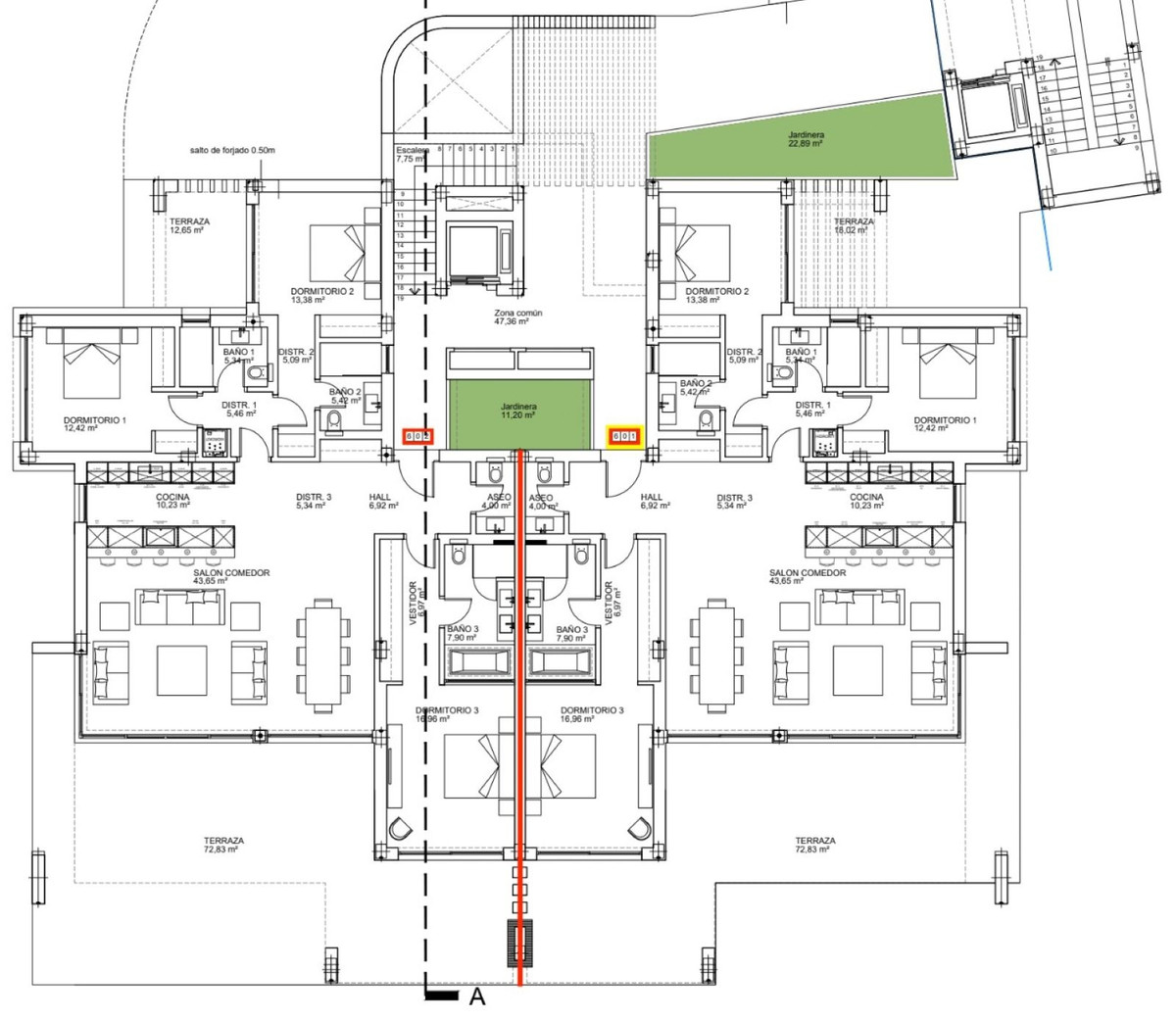
High-End Ground Floor Residence with Sea Views (Apartment 6.0.1) Marbella – Ojén (next to El Soto Golf Club) Introducing one of the most distinguished ground-floor residences within this elevated hillside enclave in Ojén, an exceptional east-facing apartment offering refined architecture, remarkable interior scale, and beautiful sea views framed by protected natural surroundings. Designed so that all homes benefit from open views towards the Mediterranean, this residence embodies space, privacy, and understated luxury at its finest. With an impressive 177 m² of constructed living space, this residence offers villa-like proportions rarely found in apartment living. The layout includes: - 3 expansive bedrooms - 3 en-suite bathrooms + guest toilet - Striking open-plan living, dining, and kitchen area - Fully fitted kitchen - Floor-to-ceiling sliding glass doors - Seamless connection to the terrace - Exceptional natural light throughout The master suite is designed as a private sanctuary, complete with a generous en-suite bathroom and direct access to the outdoor space. Two additional bedroom suites provide comfort and independence for family or guests, while the guest toilet enhances functionality for entertaining. The internal distribution has been thoughtfully designed to combine flow, elegance, and privacy, ideal for both full-time luxury living and high-end holiday use. The residence is complemented by a spectacular 92 m² terrace, creating a true extension of the interior living areas. The east orientation allows for luminous mornings and comfortable afternoons, making this outdoor space ideal for: - Elegant breakfast settings with sea views - Private relaxation areas - Lounge and entertainment zones - A refined outdoor dining experience The generous terrace dimensions provide a semi-villa atmosphere while retaining the security and convenience of a gated community. The property forms part of a carefully master-planned gated community integrated into approximately 230 hectares of protected natural landscape, ensuring long-term privacy, preserved views, and a rare sense of openness. The project has been developed by a prestigious German developer, widely respected for meticulous attention to detail, superior engineering standards, and uncompromising execution. The German dedication to precision and quality is evident in every aspect of the residence, from architectural conception to the finest interior finishes, delivering outstanding craftsmanship, structural integrity, and a level of construction excellence that clearly surpasses typical market standards. Residents enjoy access to: - Private Leisure Club - Landscaped communal areas - Secure underground parking - A tranquil, low-density environment - And much more! The property includes: - 1 underground parking space - 1 private storage room Price: €1.250.000

Responsive image
0m²
Responsive image
3
Responsive image
4
Responsive image
yes
Responsive image
0m²
Responsive image
3
Responsive image
4
Responsive image
yes

Bedrooms: 3

Bathrooms: 4

Lot size: 0m²

Living area: 177m²

Pool: yes

Garden: yes

Parking: yes

Cooling:

Storage:

Elevator:

Completion: 2026

Floor: Yes

AREA
Setting: Close To Schools, Close To Forest, Urbanisation Orientation: East Condition: New Construction Pool: Communal, Heated Views: Sea, Mountain, Forest Features: Covered Terrace, Lift, Fitted Wardrobes, Private Terrace, Storage Room Furniture: Not Furnished Kitchen: Fully Fitted Garden: Communal Security: Gated Complex, 24 Hour Security Parking: Underground, Private Category: Investment, Luxury

REQUEST FOR MORE INFORMATION

Please fill in the form below to receive more information about this new development. (* are required fields)

You can also contact the office by e-mail or phone:
+34 952 830 378 / +34 677 670 480

SEND US AN ENQUIRY


Please consider to accept our privacy policy



Alternatives

[alt]

For sale Apartment Costa Del Sol Cabopino € 1.150.000,-

Price € 1.150.000,-

More information
[alt]

For sale Apartment Costa Del Sol Cabopino € 1.199.000,-

Price € 1.199.000,-

More information
[alt]

For sale Apartment Costa Del Sol San Pedro De Alcántara € 1.225.000,-

Price € 1.225.000,-

More information
[alt]

For sale Ground Floor Apartment Costa Del Sol Marbella € 1.150.000,-

Price € 1.150.000,-

More information