For sale Detached Villa Costa Del Sol Nerja € 850.000,-

Nerja

from € 850.000,-

DESCRIPTION

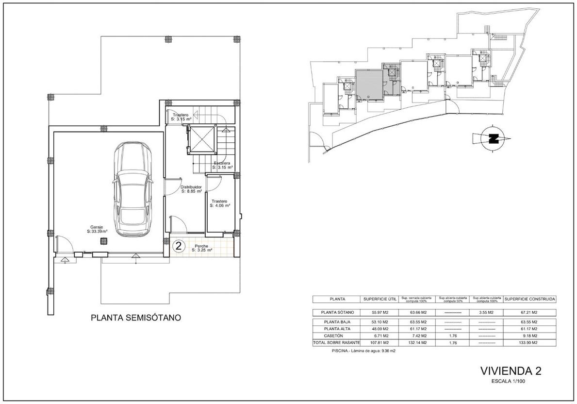
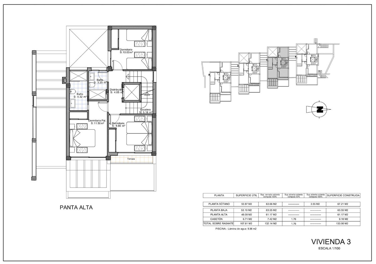
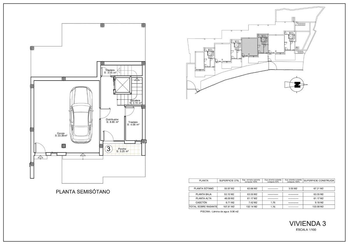
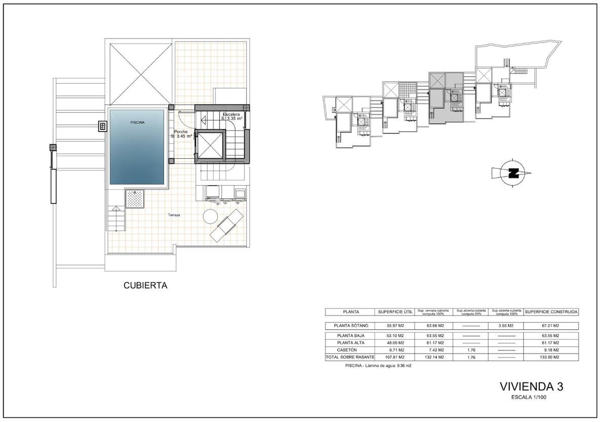
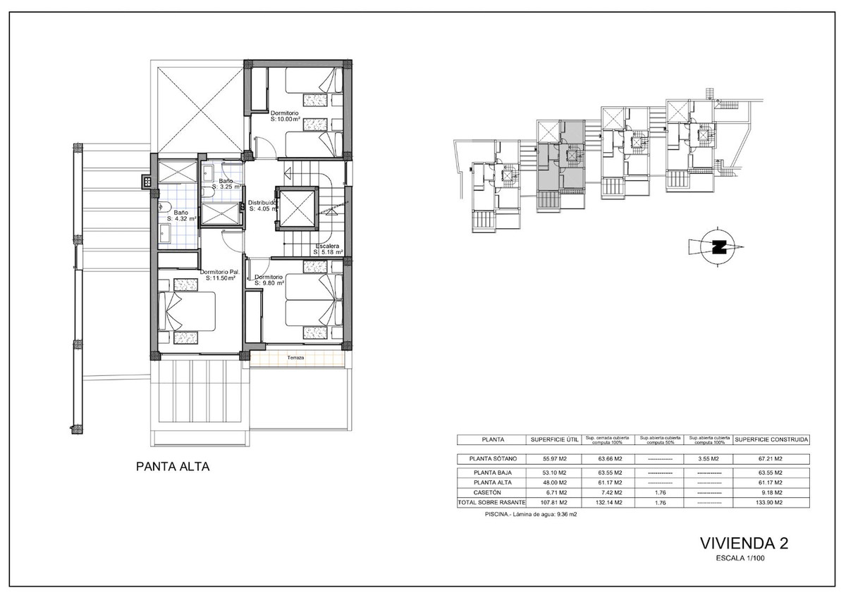
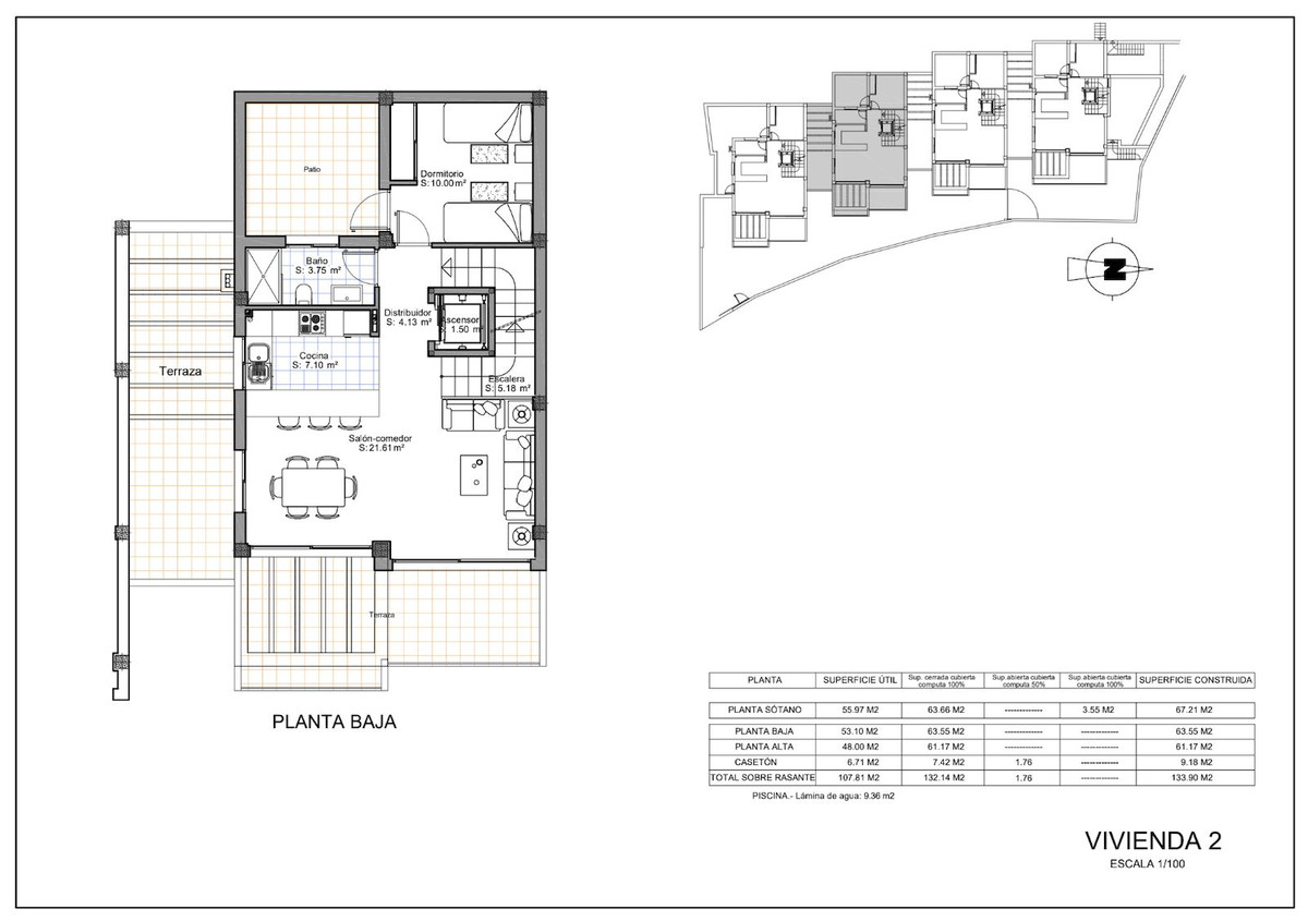
Cartujano Villas – Luxury and Privacy Just Steps from Burriana Beach Discover Cartujano Villas, an exclusive collection of only four detached villas in the heart of Nerja, just a short walk from the famous Burriana Beach. This unique project combines modern design, comfort, and privacy, perfect for those seeking a Mediterranean lifestyle by the sea. Each villa spans three levels and features 4 bedrooms, 3 bathrooms, a private elevator, garage, and a roof terrace with private pool, ideal for enjoying the sun and stunning views in complete privacy. Layout and Living Spaces: Ground floor: Main entrance, garage, and storage room, with access via elevator or stairs. First floor: Bright and airy open-plan living and dining area, modern kitchen, and a partially covered terrace perfect for relaxing, dining, or entertaining. Includes a guest bedroom with private courtyard. Second floor: Private sleeping area with three bedrooms, including the master with en-suite bathroom and built-in wardrobes. One bedroom features its own terrace. Rooftop terrace: Private pool and sunbathing area for enjoying the Mediterranean climate and views in total seclusion. High-End Features: Macael marble staircases and soundproof floors. Premium bathroom fixtures and high-quality materials. Choice of tiles and finishes for living areas and bathrooms. Solar water heating with electric backup. Video intercom, TV, radio, and Wi-Fi connections in living room and bedrooms. Available Villas: Villa 2: 132 m² + 82 m² terrace – €850,000 Villa 3: 132 m² + 82 m² terrace – €850,000 Estimated completion between 2024 and 2027. Only two villas remain, making this a unique opportunity to live just minutes from the beach, restaurants, and all the amenities Nerja has to offer. Note: New build purchase includes approximately 13% additional costs (VAT, notary, registry, and legal fees). Don’t miss your chance to secure a villa in Cartujano Villas, where luxury, comfort, and coastal living come together in perfect harmony.

Responsive image
132m²
Responsive image
4
Responsive image
3
Responsive image
yes
Responsive image
132m²
Responsive image
4
Responsive image
3
Responsive image
yes

Bedrooms: 4

Bathrooms: 3

Lot size: 132m²

Living area: m²

Pool: yes

Garden: yes

Parking: no

Cooling:

Storage:

Elevator:

Completion: 2025

Floor: Yes

AREA
Setting: Town, Suburban, Close To Shops, Close To Sea, Close To Town, Close To Schools, Urbanisation Orientation: East Condition: Excellent, New Construction Pool: Private Climate Control: Air Conditioning Views: Mountain Features: Covered Terrace, Fitted Wardrobes, Near Transport, Private Terrace, Solarium, WiFi, Storage Room, Ensuite Bathroom Furniture: Optional Kitchen: Fully Fitted Garden: Private Security: Entry Phone Parking: Garage Utilities: Electricity, Drinkable Water, Telephone Category: Holiday Homes, Luxury, Resale

REQUEST FOR MORE INFORMATION

Please fill in the form below to receive more information about this new development. (* are required fields)

You can also contact the office by e-mail or phone:
+34 952 830 378 / +34 677 670 480

SEND US AN ENQUIRY


Please consider to accept our privacy policy



Alternatives

[alt]

For sale Detached Villa Costa Del Sol Nerja € 775.000,-

Price € 775.000,-

More information
[alt]

For sale Detached Villa Costa Del Sol Estepona € 950.000,-

Price € 950.000,-

More information
[alt]

For sale Detached Villa Costa Del Sol New Golden Mile € 900.000,-

Price € 900.000,-

More information
[alt]

For sale Detached Villa Costa Del Sol Nerja € 865.000,-

Price € 865.000,-

More information