For sale Detached Villa Costa Del Sol Campo Mijas € 1.200.000,-

Campo Mijas

from € 1.200.000,-

DESCRIPTION

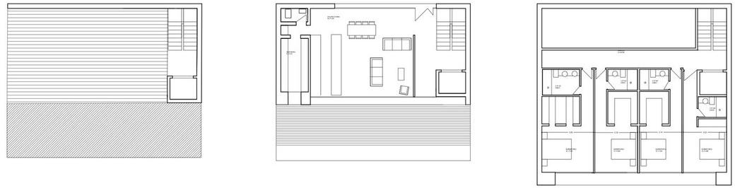
Luxurious Contemporary Villa | Campo Mijas We are very proud to introduce to you this unique 5* off plan villa, nestled within the heart of this well established urbanisation. This price is for the completed Key in Hand Villa Distributed over 3 floors with a unique roof-top infinity pool, the owners of this home will be able to enjoy a peaceful lifestyle surrounded by nature and be privileged to spectacular rooftop views spanning the coastline of Mijas Costa. The elegant villa design perfectly encapsulates the mediterranean lifestyle and creates a harmony with its natural surroundings. Open interiors merge seamlessly with ample terraces on each level providing plenty of relaxation areas. The house itself will be built to the highest of standards utilising an assortment of natural finishings. The new owners are able to personalise the internal distribution should they wish. They can work with the project manager to put their own stamp on what can only be described as a work of art. Current plans are for 4 bedrooms, 5 bathrooms (4 of which are ensuite), and a large 100m2 basement to be utilised to your desire, games room, gym, additional bedrooms, office space or all of above. Works can start almost immediately with the license that is in place and the build should take around 13 months, although the contract will be for 15 months to account for any unforeseen circumstances. Campo Mijas and its surrounding areas seem to be enjoying a massive uplift in value with the current boom in the Spanish property market. Decent real estate in the area doesn’t stay on the market for very long. A flexible payment schedule can be arranged between the new owners and the project manager. Bank guarantees and insurances are in place providing additional security for the buyer throughout the building process. Please don’t hesitate to get in touch for more information and viewings…….this opportunity will not be on the market for very long. From 4 en-suite bedrooms 405 m2 built including basement (156m2) 787 m² plot with infinity rooftop pool

Responsive image
220m²
Responsive image
4
Responsive image
5
Responsive image
yes
Responsive image
220m²
Responsive image
4
Responsive image
5
Responsive image
yes

Bedrooms: 4

Bathrooms: 5

Lot size: 220m²

Living area: m²

Pool: yes

Garden: yes

Parking: yes

Cooling:

Storage:

Elevator:

Completion: 2025

Floor: Yes

AREA
Setting: Country, Close To Shops, Close To Town, Close To Schools, Close To Forest Orientation: South East, South, South West Condition: Excellent, Good Pool: Private, Heated Climate Control: Pre Installed A/C Views: Sea, Mountain, Country, Panoramic, Garden, Pool Features: Covered Terrace, Lift, Fitted Wardrobes, Near Transport, Private Terrace, Solarium, Satellite TV, Gym, Sauna, Games Room, Utility Room, Ensuite Bathroom, Marble Flooring, Jacuzzi, Bar, Barbeque, Double Glazing, Domotics, Basement, Fiber Optic Furniture: Optional Kitchen: Fully Fitted Garden: Private, Landscaped Security: Electric Blinds, Entry Phone, Alarm System Parking: Garage, Covered, Private Utilities: Electricity, Drinkable Water Category: Investment, Luxury, Contemporary

REQUEST FOR MORE INFORMATION

Please fill in the form below to receive more information about this new development. (* are required fields)

You can also contact the office by e-mail or phone:
+34 952 830 378 / +34 677 670 480

SEND US AN ENQUIRY


Please consider to accept our privacy policy



Alternatives

[alt]

For sale Detached Villa Costa Del Sol Casares Playa € 1.200.000,-

Price € 1.200.000,-

More information
[alt]

For sale Detached Villa Costa Del Sol Cancelada € 1.295.000,-

Price € 1.295.000,-

More information
[alt]

For sale Detached Villa Costa Del Sol Benalmadena Costa € 1.277.000,-

Price € 1.277.000,-

More information
[alt]

For sale Detached Villa Costa Del Sol Valle Romano € 1.295.000,-

Price € 1.295.000,-

More information